Die Designerlinie für den flächenbündigen Einbau in SILGRANIT
>> Flächenbündige Spüle (also flächenbündig mit der Arbeitsplatte einbaubar).
Diese Einbauart ist grundsätzlich nur bei Stein-Arbeitsplatten möglich.
- Becken für moderne Küchenplanungen
- Zeitlos elegante, geradlinige Beckenform
- Hochwertige Ausstattung mit Ablauffernbedienung, Überlauf C-overflow und Ablaufsystem InFino – elegant integriert und besonders pflegeleicht
- KEINE Ablauffernbedienung im Lieferumfang enthalten
Daten:
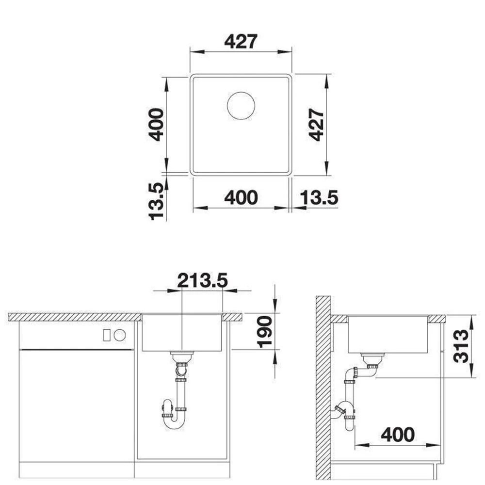
- Maße: B 427 x T 427 mm
- Beckengröße: 400 x 400 x 190 mm
- Ausschnittmaße: 429 x 429 mm
- Einbaubar im Unterschrank ab 50 cm Schrankbreite
- Material/Oberfläche: Silgranit in verschiedenen Farben
Im Lieferumfang enthalten:
- Ab- und Überlaufgarnitur mit Raumsparrohr
- Ablaufverbindung
- 3 1/2“ InFino Korbventile
Optionales Zubehör:
- Bitte klicken Sie dazu den Reiter „Zubehör“ an.



















Rezensionen
Es gibt noch keine Rezensionen.