BLANCO Claronline: vollkommen in Design und Funktion
>> Unterbauspüle (also unterhalb der Arbeitsplatte einbaubar).
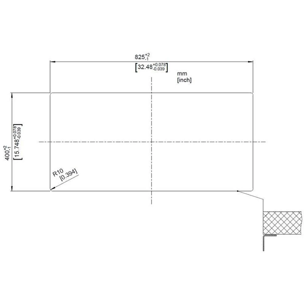
Diese Einbauart ist grundsätzlich nur bei Stein-Arbeitsplatten möglich.
- Prägnanter Radius von 10 mm für mehr Design – ohne auf funktionale Vorteile zu verzichten
- BLANCO CLARON in elegant-purem Design ohne sichtbare Bodenprägung
- Optimale Ausnutzung des Beckenvolumens durch extra tiefe Becken und engstmögliche Radien
- Ein breites Produktprogramm ermöglicht eine Vielzahl individueller Kombinationen
- Ablaufsystem InFino – elegant integriert und besonders pflegeleicht
Daten:
- Maße: B 865 x T 440 mm
- Beckengröße: 400 x 400 x 190 mm / 400 x 400 x 190 mm
- Ausschnittmaße: 825 x 400 mm
- Oberfläche: Edelstahl Seidenglanz
- Einbaubar im Unterschrank ab 90 cm Schrankbreite
- Keine Ablauffernbedienung im Lieferumfang enthalten!
Im Lieferumfang enthalten:
- Manuelle Ab- und Überlaufgarnitur mit Raumsparrohr
- 3 1/2“ InFino-Korbventil (Hand-betätigt)
- Befestigungsset (Dichtung bauseits)
Optionales Zubehör:
- Bitte klicken Sie dazu den Reiter „Zubehör“ an.
Ablaufsystem InFino
Meisterhaftes Design in faszinierender Technik – der neue Blickfang für die Spüle
BLANCO InFino® folgt einem völlig neu überdachten Bedien- und Funktionskonzept sowohl bei der manuellen Hand-Betätigung des Ablaufs als auch mit Ablauf-Fernbedienung (Exzenter-Betätigung).
- Elegant-puristisches Design
- Smartes manuelles Bedienkonzept, optional mit Fernbedienung
- Nahezu rand- und übergangslose Integration
- Einsetzbar für alle Spülenwerkstoffe
- Flächenbündig ausgeführt, für eine ruhige Gesamtoptik
- Vordefinierte, immer exakt zentrierte Position des Siebkörbchens
- Servicefreundliche Konstruktion durch schnelle und einfache Ventilmontage
Der Ablauf wird bei Handbetätigung durch den Drehvorgang nach rechts oder links geöffnet bzw. geschlossen. Im Gegensatz zum herkömmlichen Auf- und Nieder-Prinzip erfährt das Sieb dadurch keine Positionsveränderung. Damit ist eine Verschmutzung des Kelches durch grobe Schmutzteile ausgeschlossen.
Empfehlung Küchenarmatur:
- 514918 LEVOS-S Edelstahl seidenglanz





















Rezensionen
Es gibt noch keine Rezensionen.